Ref
Busco
Tipo
En
Zona
Habitaciones
Baños
Características
Precio

Venta piso Salamanca, Recolectos - Madrid 3 hab (ref.1616)

5.395.000 €
323 m2   |  3 Habitaciones  |  4 Baños  |  Planta 4   |

Venta piso Salamanca, Recolectos - Madrid 3 hab

323 m2  3 Habitaciones  4 Baños  Planta 4

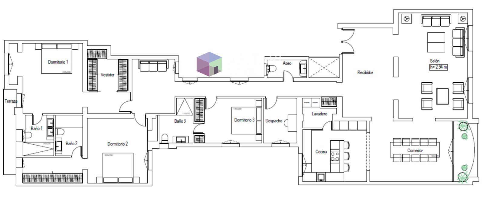
Ubicada en la prestigiosa calle Ayala, en pleno barrio de Recoletos, esta espectacular vivienda de 323 m² representa la fusión perfecta entre espacio, lujo y funcionalidad. Situada en una cuarta planta exterior derecha, la propiedad ha sido cuidadosamente diseñada para ofrecer comodidad y distinción en cada rincón.


La vivienda cuenta con tres dormitorios con baño en suite, lo que garantiza privacidad y confort. Además, dispone de un aseo de cortesía, ideal para invitados. El amplio salón-comedor, lleno de luz natural, se convierte en el espacio perfecto para disfrutar del día a día o recibir visitas. La cocina moderna y totalmente equipada completa esta distribución excepcional.


El inmueble incorpora sistema de aire acondicionado, agua caliente central y calefacción central con contadores individuales, lo que permite una gestión eficiente del consumo.


La finca, ubicada en una de las zonas más codiciadas de Madrid, se encuentra rodeada de restaurantes de alta gama, tiendas de lujo, espacios culturales y excelentes conexiones de transporte, con cercanía a la Milla de Oro y el Parque del Retiro.


Una propiedad ideal tanto como residencia principal como para inversión de alto nivel en una de las ubicaciones más exclusivas de la capital.

Construidos 323 m2
Dormitorios 3
Baños 4
Amueblado
Cocina Amueblada
Calefacción Central por contadores individuales
Altura/Planta 4
Estado Reformado
Aire acondicionado
Calificación Energética En trámite
La dirección del inmueble es aproximada.

Solicita información

Si deseas más información sobre esta propiedad, por favor, rellena el formulario:


Calle de Alcalá, 121, 3D.
28009 Madrid

CONECTA