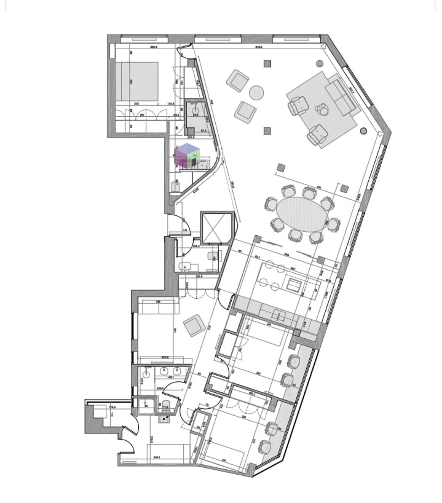
En el codiciado distrito de Retiro, se encuentra esta vivienda única de 219 m², ubicada en la tercera planta exterior de un edificio de esquina, frente al Parque del Retiro. Su orientación oeste y grandes ventanales aportan excelente luminosidad a lo largo del día.
La distribución incluye 3 amplios dormitorios, siendo el principal en suite, además de 2 baños completos y un aseo de cortesía. Dispone también de una habitación de servicio con zona de lavandería, que suma funcionalidad y comodidad a la vivienda.
La cocina, equipada con isla de madera y zona de desayunador, se conecta al salón-comedor mediante puertas acristaladas, aportando amplitud y elegancia. Entre sus prestaciones destacan la calefacción central con contadores individuales y el aire acondicionado por bomba frío-calor, garantizando confort en cualquier época del año.
El edificio, construido en 1956, cuenta con portero físico, acceso para personas con movilidad reducida y tres ascensores, asegurando practicidad y calidad de vida.
Ubicada en una de las zonas más exclusivas de Madrid, con vistas directas al Parque del Retiro, rodeada de restaurantes, comercios y excelentes conexiones de transporte, esta vivienda es una oportunidad única tanto para residir como para invertir.