Ref
Busco
Tipo
En
Zona
Habitaciones
Baños
Características
Precio

Venta ático, Salamanca - Madrid 3 hab (ref.1684)

1.590.000 €
139 m2   |  3 Habitaciones  |  3 Baños  |  Planta 6   |

Venta ático, Salamanca - Madrid 3 hab

139 m2  3 Habitaciones  3 Baños  Planta 6

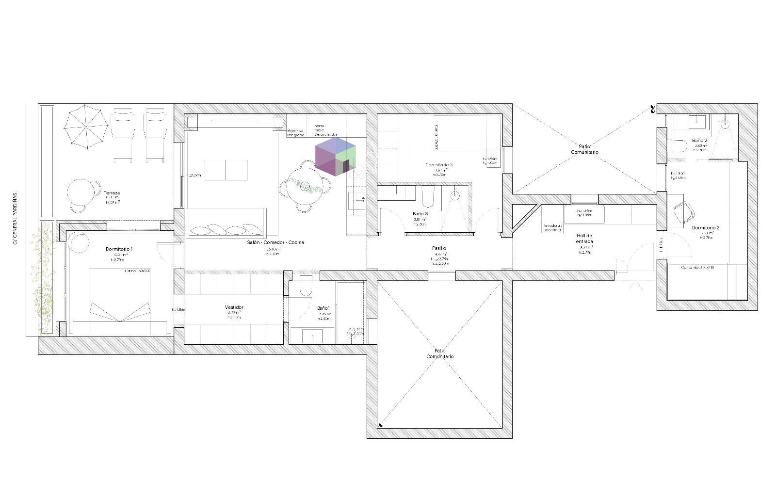
En el prestigioso barrio de Salamanca, en una de las calles más emblemáticas de Goya, se encuentra este luminoso ático exterior de 139 m² con una terraza de 17 m² que ofrece un refugio tranquilo y elevado en pleno centro de Madrid. Situado en una finca clásica con portero y ascensor, el edificio cuenta con solo cuatro vecinos por planta, garantizando privacidad y exclusividad.


La vivienda dispone de tres habitaciones y un amplio salón con acceso directo a la terraza, ideal para disfrutar de los atardeceres madrileños y las vistas despejadas sin edificios altos enfrente. Gracias a su orientación y a las ventanas en ambos lados del pasillo, el piso goza de una luminosidad excepcional durante todo el día.


La propiedad, a reformar, combina el encanto de la arquitectura clásica con un gran potencial de personalización, ofreciendo la oportunidad de crear un espacio único adaptado a los gustos del comprador. Su ubicación privilegiada, rodeada de comercios premium, restaurantes de prestigio, centros educativos y todos los servicios, asegura una excelente calidad de vida y una alta rentabilidad, tanto para uso residencial como para inversión.


Con una conexión inmejorable mediante transporte público y fácil acceso a las principales vías de la ciudad, este ático representa una oportunidad única en el corazón del barrio de Salamanca.

Construidos 139 m2
Útiles 122 m2
Dormitorios 3
Baños 3
Calefacción Central
Altura/Planta 6
Estado A reformar
Ascensor
Calificación Energética En trámite

Solicita información

Si deseas más información sobre esta propiedad, por favor, rellena el formulario:


Calle de Alcalá, 121, 3D.
28009 Madrid

CONECTA